Questo sito utilizza i cookie per offrirti una migliore esperienza di navigazione.
Cliccando su "Accetto" acconsenti all'utilizzo di tutti i cookies.
Se rifiuti o chiudi questo banner potrai ugualmente consultare il sito ma alcune funzionalità potrebbero non essere disponibili.

Leggi la Cookies policy
Si tratta di cookies tecnici indispensabili al funzionamento del sito
Consentono di monitorare le visite al sito (statistiche) e per farti visualizzare messaggi pubblicitari coerenti con le preferenze ed i gusti da te manifestati durante la tua navigazione su Internet
Regione Piemonte (Apre il link in una nuova scheda) Città metropolitana di Torino (Apre il link in una nuova scheda)

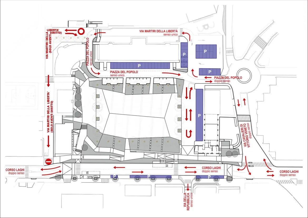
Nuova viabilità definitiva in piazza del Popolo

Inizia a prendere forma la nuova piazza del Popolo: il progetto prevede ora una nuova viabilità di accesso alla zona parcheggio e la contestuale chiusura della strada sul lato Sud della Casa del Popolo.  Da oggi è attiva la nuova...
Data:

30 luglio 2025

Tempo di lettura:

meno di 1 min

Tipologia

Avviso

Descrizione

Inizia a prendere forma la nuova piazza del Popolo: il progetto prevede ora una nuova viabilità di accesso alla zona parcheggio e la contestuale chiusura della strada sul lato Sud della Casa del Popolo. 

Da oggi è attiva la nuova circolazione definitiva che prevede l’immissione nella piazza dalla rotonda del centro commerciale Le torri e l’uscita con un percorso a senso unico in via Martiri della Libertà e ritorno in piazza del Popolo oppure proseguendo in via Martiri della libertà solo per gli aventi diritto. 

Le aree parcheggio saranno sul lato Est e Sud e davanti alla scuola Defendente Ferrari, in corso Laghi su fronte commerciale e, in attesa della realizzazione del parcheggio fronte Coop e conseguente lotto di completamento della pavimentazione della piazza, sul lato dell' ex mercato ittico.

A cura di

Con l'App è meglio!

Sapevi che puoi leggere questo Avviso anche sull'App ufficiale del comune?

Scaricala subito!

Ultimo aggiornamento pagina: 30/07/2025 16:15:32

Quanto sono chiare le informazioni su questa pagina?

Salta la valutazione della pagina
Valuta da 1 a 5 stelle la pagina

Grazie, il tuo parere ci aiuterà a migliorare il servizio!

Quali sono stati gli aspetti che hai preferito? 1/2
Dove hai incontrato le maggiori difficoltà? 1/2
Vuoi aggiungere altri dettagli? 2/2
Inserire massimo 200 caratteri